
出典:「家具なび~きっと家具から始まる家づくり~ 名古屋・インテリアショップBIGJOYが家具の視点から家づくりを提案 Powered by Ameba」
Lifestyle
ダイニングのインテリアはどう選ぶ?広く見せるには色が重要だった!
■使いやすくて広く見えるダイニングの作り方
まず、ダイニングテーブルの選び方や配置の決め方、空間を広く見せるコツをご紹介します。
・ダイニングテーブルの適切な大きさ

ダイニングテーブルの大きさを決めるときは、幅×奥行と高さがポイントです。一般的に食事をするときに必要なテーブルの大きさは、ひとり当たり60cm×40cmと言われています。この基準を目安に、家族の人数を考えて適切な大きさを計算してみましょう。ダイニングテーブは食事をすることが主な目的のため、高さも重要です。高すぎても低すぎても食事がしにくいので、適切な高さを選びましょう。ダイニングテーブルの標準的な高さは72cm程度ですが、子どもがいる家庭では高さ70cm弱のテーブルが使いやすいと言われています。
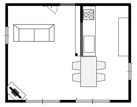
・リビングダイニングは家具の配置で変わる

家具の配置で、部屋全体の雰囲気や広さの感じ方が変わってきます。とくにリビングダイニングの場合は、リビングスペースにあるソファやテレビなどの置き方も重要です。こちらの例を参考にしてみましょう。4人が快適に座れることを考えると、ダイニングテーブルはこの向きに固定されがちですよね。そこで図のようにソファを置くと、ダイニングテーブルとソファの間隔が狭く通り抜けづらくなっています。リビング入り口からキッチンまでの導線を考えたとき、これでは遠回りをしなければなりません。また、ソファで家族がテレビを見ていた場合、その前を遮って通るようになります。

次に、こちらの配置。リビング入り口からキッチンまでは最短距離で行けますが、窓を避けるためソファに対してテレビが斜めになっています。

最後に、こちらの配置はどうでしょうか。リビング入り口からキッチンまでの導線もスムーズで、テレビとソファの距離も充分に確保できています。家族みんなが、どの場所にいても快適に過ごせそうです。あまり広さのないリビングダイニングでも、ダイニングテーブルをはじめとした家具の配置次第で、広く感じたり過ごしやすさがアップしたりします。
・ダイニングを広く見せるには明るめの色を活用
狭いダイニングも、色の選び方やコーディネートで広く見せることができます。とくにインパクトの強いダイニングテーブルやソファ、カーテンなどは色が重要。これらの家具や壁・内装は、白やベージュなどの明るい色がおすすめです。天井が明るいと、天井も高く見えます。カーテンも膨張しない色を選ぶと、正面から見たときに奥行きが出るでしょう。賃貸のアパートやマンションであれば、壁を変えるのは難しいかもしれませんね。しかしウォールシートを活用したり明るい色のラグを敷いたりなど、さまざまな工夫ができます。カーテンであれば、少し気軽に変えることもできそうです。ダイニングテーブルやソファなどの家具をこれから購入予定の方は、ぜひ色選びの参考にしてみてくださいね。
■テイスト別!おしゃれなダイニングのレイアウト例
それでは、おしゃれなダイニングのレイアウト例を見てみましょう。
・日本のダイニングで作る北欧風の空間
白やグレーなどの色を基調とするのが、北欧風のダイニングの基本。木製床のダイニングも、インテリアを白やグレーでまとめると北欧風に見せることができます。北欧柄のランチョンマットやクッションを取り入れてもいいかもしれませんね。シンプルだけど居心地がいい、そんな空間です。
・憧れのカフェ風ダイニングは小物をうまく活用
カフェ風のダイニングを目指すなら、木製家具や籐のかごをベースにしてみましょう。ステンレス製のインテリアも、カフェ風ダイニングにマッチします。マグやコーヒーメーカーなどの小物を上手に活用すると、おしゃれに決まりそうです。
・モダンなダイニングは直線をイメージして
スタイリッシュなインテリアでまとめると、モダンなダイニングになります。シンプルで直線的なデザインを取り入れていくと、モダンテイストを作りやすいですよ。
・木製家具でそろえたナチュラルダイニング

ナチュラルなインテリアで統一した、あたたかみを感じるダイニングです。木製家具が好きな方におすすめ。ホッとできる空間になりそうです。
■狭いダイニングにカウンターキッチンは不要?

狭いダイニングの場合、キッチン前のカウンターをなくして腰の高さの家具を置くことで、スペースを有効活用できることもあります。圧迫感もなくダイニングテーブルとの高さもそろっているので、スッキリ見えますね。
Recommend
[ おすすめ記事 ]

Lifestyle
「本当に買ってよかった!」マニアも歓喜した【カルディ】おすすめ商品BEST15<2025年12月最新> mamagirl WEB編集部

Lifestyle
【2025最新】北海道でしか買えないお土産!人気のお菓子から雑貨まで絶対喜ばれるおすすめ商品14選 micoto

Lifestyle
「最高においしいトースター!」外はカリっと、中はふんわり♡しかもおしゃれでかわいい【Toffy】の新作紹介! ぽてさらぱけっと

Lifestyle
「24時間きれいな空気で快適」【ブルーエア】から最強の小型空気清浄機が登場! 森由紀子

Lifestyle
「自分の心にスイッチが入った!」ADIDAS EKIDEN DAY【3児のママ・ファンラン通信㉑】 yukari

Lifestyle
「もう準備した?」【スリーコインズ】プチプラで叶う♡おしゃれなお正月グッズ特集 tamago













